San Saba


< previous > < index > < next >
2b328392
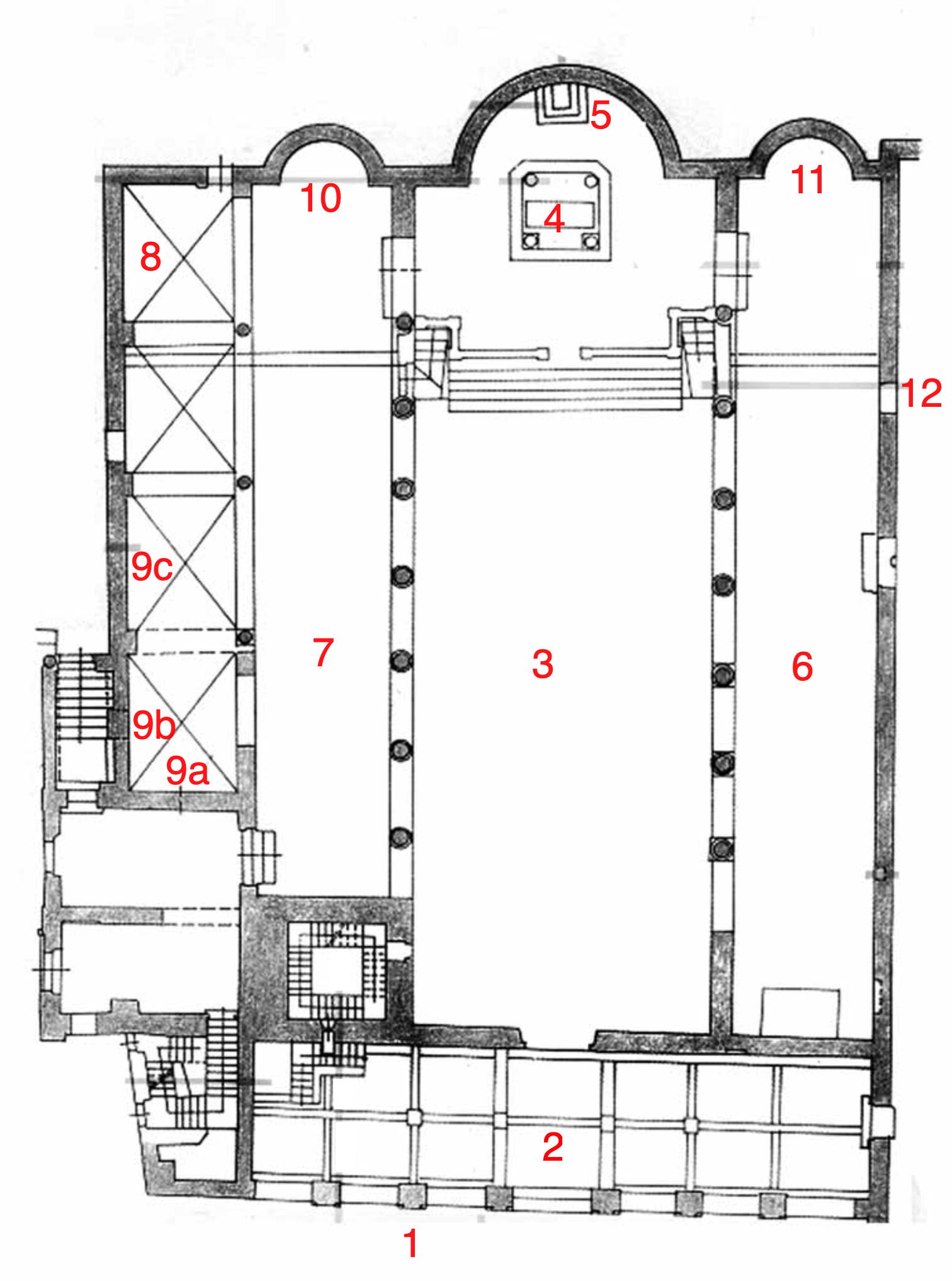
Narthex
On the walls are ancient sculptural fragments which are all found in the area. The narthex also contains some very fine ancient Roman carved sarcophagi, some of which date from the days of emperors Vespasian and Titus (69-81 AD).
(Plan location #2)

(Photo borrowed from internet)
© TripAdvisor